合志市須屋6期戸建 合志市須屋[戸建]

合志市須屋6期戸建 合志市須屋[戸建]

戸建[合志市須屋]

熊本の売買物件情報|明和不動産 ガラリト

  • 0120-655-528
  • 受付時間/9:00~18:00(定休日:水曜日)

会員の方

閉じる

物件詳細

合志市須屋6期戸建 合志市須屋[戸建]

 

合志市須屋6期戸建 合志市須屋[戸建]の物件詳細ページです。

物件種別: 戸建

お問い合わせ番号:T0181

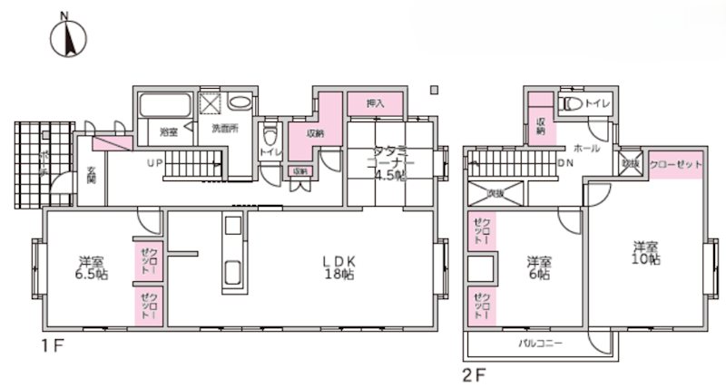
間取り(面積)

4LDK

( 120.07㎡)

価格(円)

2398万円
(税込)

交通: 【バス】黒石団地東 バス停徒歩4分

専有・建物: 約36.32坪

築年月:1988年3月

ポイント

2025年11月リフォーム完了リノベーション住宅☆彡家族それぞれの個室も確保しやすい4LDKの間取りです☆彡駐車4台可能!マイカー所有が多いご家族様や来客時にも安心です♪

 

問い合わせ(無料)

TEL: 096-285-5345

お問い合わせ番号: T0181

QRコード

資料請求などはこちら

問い合わせ(無料)

TEL: 096-285-5345

お問い合わせ番号: T0181

スタッフからのコメント

・1階に収納のお部屋があり、整理整頓に便利!また、各居室に収納がありお部屋をすっきり保てます♪
・家事の時短に嬉しい食洗機付きキッチン!食器洗いの負担軽減になる嬉しい設備ですね☆
・リビングにくつろぎの畳コーナーがありお子様の遊び場やお昼寝スペースとしても便利です!

セールスポイント

特徴等

最適用途:住宅用地 

設備等

ウォークインクローゼット 全居室収納 システムキッチン 食器洗浄乾燥機 コンロ口数:3口 浄水器 バス・トイレ別 温水洗浄便座 トイレ2ヶ所 追い焚き風呂 オートバス 浴室乾燥 風呂一坪以上 脱衣所 吹抜 玄関ホール ポーチ 室内洗濯機置場 TVインターホン 火災報知機 

電気 ガス:プロパン 水道:公営 下水:公共下水 ディンプルキー 

駐車場 有(敷地内) 駐車4台可
駐輪場 有り  バイク置き場 有り 
小学校 合志市立西合志東小学校 1200m  中学校 合志市立西合志南中学校 1040m 
近隣施設

スーパー:マックスバリュみずき台店  700m

コンビ二:ローソン 熊本黒石店  720m

ショッピング施設:SPring Garden MIYOSHI  1299m

郵便局:黒石簡易郵便局  550m

銀行:株式会社肥後銀行 みよしスマート支店  1631m

保育所:さくらんぼ第2保育園  1070m

総合病院:国立病院機構熊本再春荘病院(独立行政法人)  1800m

小児科:まつもとこどもクリニック  2239m

物件概要

物件名 合志市須屋6期戸建
物件所在地 熊本県合志市須屋2695-215 周辺地図
交通機関 【バス】黒石団地東 バス停徒歩4分
【バス】黒石・ポリテクセンター熊本前 バス停徒歩9分
熊本電鉄菊池線 黒石(熊本)駅 徒歩9分
敷地の権利形態 所有権
土地面積 258㎡(公簿) 造成年月日 -
私道負担面積 無し
接道状況 西4.5m公道 / 北4.6m公道 北西角地 整形地/不整形地
地目 宅地  地勢 平坦
建ぺい率 50% 容積率 80%
建物構造 木造 /スレート葺 築年月 1988年3月
面積(専有・建物) 120.07㎡
窓の向き バルコニー
間取り詳細 1階:LDK(18畳) 洋室(6.5畳) 和室(4.5畳) 2階:洋室(10畳) 洋室(6畳) 
建物階数 地上2階建  所在階
都市計画 市街化区域 用途地域 第一種低層住居専用地域
現況 空き 引渡時期 相談
備考 ■主なリフォーム内容(2025年11月完了済み)
○内装:水回り全新品交換・天井、壁クロス全面張替・和室新設・全居室火災報知器設置
○外装:防蟻工事(施工後5年保証)・屋根・外壁塗装

その他

取引態様 媒介(仲介) 自社管理番号 T0181
情報更新日 2026年3月17日 次回更新予定日 2026年4月16日
不動産会社コード 2113556 物件管理コード 2138929903330000007008
  • ※価格は物件の代金総額を表示しており、消費税が課税される場合は税込と表記の上、税込価格で表示しております。
  • ※間取りの「S」はサービスルーム(納戸)です。
  • ※現況と異なる場合には現況を優先します。
  • ※QRコードは(株)デンソーウェーブの登録商標です。
  • ※利回りとは、当該不動産の1年間の予定賃料収入の不動産取得対価に対する割合であり、
  •    公租公課その他当該物件を維持するために必要な費用の控除前のものです。
  •    また、予定賃料収入が確実に得られることを保証するものではありません。

資料請求などはこちら

問い合わせ(無料)

TEL: 096-285-5345

お問い合わせ番号: T0181

お問い合わせ先:株式会社明和不動産 住宅事業部 住宅販売嘉島支店

所在地 : 熊本県上益城郡嘉島町上島2120番地1
TEL : 096-285-5345
免許番号 : 国土交通大臣(3)第8432号
加盟団体 : (公社)熊本県宅地建物取引業協会/(一社)九州不動産公正取引協議会/(公社)全国宅地建物取引業保証協会会員

この部屋を見学予約

ホームへ戻る

(c) Meiwa Real Estate All rights reserved.