菊池市大琳寺戸建 菊池市大琳寺[戸建]

菊池市大琳寺戸建 菊池市大琳寺[戸建]

戸建[菊池市大琳寺]

熊本の売買物件情報|明和不動産 ガラリト

  • 0120-655-528
  • 受付時間/9:00~18:00(定休日:水曜日)

会員の方

閉じる

物件詳細

菊池市大琳寺戸建 菊池市大琳寺[戸建]

 

菊池市大琳寺戸建 菊池市大琳寺[戸建]の物件詳細ページです。

物件種別: 戸建

お問い合わせ番号:T0171

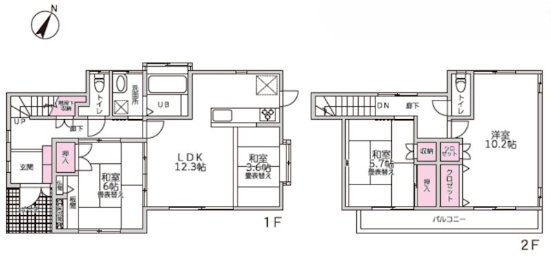
間取り(面積)

3LDK

( 98.65㎡)

価格(円)

1998万円
(税込)

交通: 【バス】大琳寺 バス停徒歩4分

専有・建物: 約29.84坪

築年月:2006年4月

ポイント

2025年9月リノベーション完了住宅☆彡全室南向きの明るい住まい♪ガーデニングや家庭菜園、お子さまの遊び場としても活躍!楽しみが増える南庭付きです^^

 

問い合わせ(無料)

TEL: 096-285-5345

お問い合わせ番号: T0171

QRコード

資料請求などはこちら

問い合わせ(無料)

TEL: 096-285-5345

お問い合わせ番号: T0171

スタッフからのコメント

・小中学校まで徒歩10分圏内♪通学の負担が少なく、子育て世帯に嬉しい住環境です!
・扉を開けた瞬間に広がる、開放的な吹き抜け玄関!宅した瞬間から広がるゆとりと明るさが、住まいの第一印象を高めます!

セールスポイント

特徴等

最適用途:住宅用地 

設備等

全居室収納 システムキッチン 食器洗浄乾燥機 コンロ口数:3口 浄水器 バス・トイレ別 温水洗浄便座 トイレ2ヶ所 バス有 追い焚き風呂 風呂一坪以上 脱衣所 フローリング 吹抜 玄関ホール ポーチ 室内洗濯機置場 給湯有 火災報知機 

電気 ガス:プロパン 水道:公営 下水:公共下水 

駐車場 有(敷地内) 並列2台可能
小学校 菊池市立隈府小学校 706m  中学校 菊池市立菊池南中学校 616m 
近隣施設

コンビ二:セブンイレブン 菊池中央店  368m

銀行:熊本銀行菊池支店  502m

総合病院:菊池中央病院  524m

ドラッグストア:ドラッグストアコスモス 菊池店  579m

スーパー:サニー菊池店  597m

警察署・交番:菊池警察署  620m

郵便局:菊池郵便局  708m

保育所:菊池みゆきこども園  800m

物件概要

物件名 菊池市大琳寺戸建
物件所在地 熊本県菊池市大琳寺279-3 周辺地図
交通機関 【バス】大琳寺 バス停徒歩4分
敷地の権利形態 所有権
土地面積 198.69㎡(公簿) 造成年月日 -
接道状況 南4.3m公道 整形地/不整形地
地目 宅地  地勢 平坦
建ぺい率 60% 容積率 172%
建物構造 木造 築年月 2006年4月
面積(専有・建物) 98.65㎡
間取り詳細 1階:LDK(12.3畳) 和室(6畳) 2階:洋室(10.2畳) 和室(5.7畳) 畳コーナー3.6帖(1階)
建物階数 地上2階建  所在階
都市計画 市街化区域 用途地域 第一種住居地域
現況 空き 引渡時期 相談
備考 ■主なリフォーム内容(2025年9月完了済み)
○内装:システムバス・トイレ・洗面化粧台交換、天井・壁クロス全面張替、省エネ給湯器、全居室火災警報器設置
○外装:屋根・外壁塗装給湯器、防蟻工事(施工後5年保証)

その他

取引態様 媒介(仲介) 自社管理番号 T0171
情報更新日 2026年4月28日 次回更新予定日 2026年5月28日
不動産会社コード 2113556 物件管理コード 2138929903330000007109
  • ※価格は物件の代金総額を表示しており、消費税が課税される場合は税込と表記の上、税込価格で表示しております。
  • ※間取りの「S」はサービスルーム(納戸)です。
  • ※現況と異なる場合には現況を優先します。
  • ※QRコードは(株)デンソーウェーブの登録商標です。
  • ※利回りとは、当該不動産の1年間の予定賃料収入の不動産取得対価に対する割合であり、
  •    公租公課その他当該物件を維持するために必要な費用の控除前のものです。
  •    また、予定賃料収入が確実に得られることを保証するものではありません。

資料請求などはこちら

問い合わせ(無料)

TEL: 096-285-5345

お問い合わせ番号: T0171

お問い合わせ先:株式会社明和不動産 住宅事業部 住宅販売嘉島支店

所在地 : 熊本県上益城郡嘉島町上島2120番地1
TEL : 096-285-5345
免許番号 : 国土交通大臣(3)第8432号
加盟団体 : (公社)熊本県宅地建物取引業協会/(一社)九州不動産公正取引協議会/(公社)全国宅地建物取引業保証協会会員

この部屋を見学予約

ホームへ戻る

(c) Meiwa Real Estate All rights reserved.